Название 2

Проект Название 2

206 м² 2 этажа
Жилая площадь
183 м²
Ванных комнат
2
Гараж
Есть
Материал стен
Конструкционный клееный брус
Материал и тип кровли
Cкатная, материал — на выбор заказчика
Двери и окна
Безрамное остекление, пластик + аллюминий
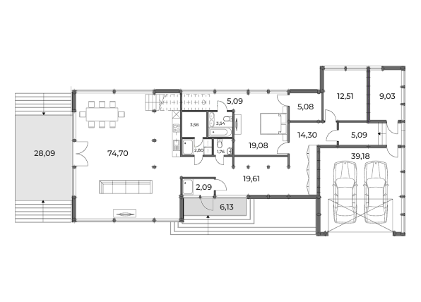
  • 1 этаж
  • 2 этаж
Любая деталь планировки может быть изменена. Данный проект — отправная точка, пример работы и стоимости

Как строится фахверк Kaplun House

1 этап
3 месяца
Подготовка архитектурного и дизайн-проектов, заказ домокомплекта

Готовим индивидуальный архитектурный проект дома и разрабатываем дизайн интерьера. Заказываем на производстве домокомплект на основе проекта: сверхпрочный склеенный по специальной технологии брус с выточенными с точностью до миллиметра пазами и отверстиями, который будет служить силовым каркасом дома.

2 этап
1 месяц
Фундамент и доставка материалов

В качестве фундамента чаще всего применяем монолитную плиту из армированного бетона с заложенными в ней инженерными коммуникациями и системами отопления пола первого этажа.

Это универсальная и долговечная основа дома. Узнайте, в чем его плюсы. Доставляем на объект и устанавливаем элементы силового каркаса.

3 этап
1 месяц
Стены и кровля

В стенах используется высококачественный утеплитель с большим сроком службы. Финишная отделка – долговечная декоративная штукатурка с высокой стойкостью к износу. Закрывает контур дома цементно-песчаная черепица. Это прочный и тяжелый материал, который придает всей конструкции дополнительную устойчивость.

4 этап
3 недели
Перекрытия и инженерные коммуникации

Возводим перекрытия, прокладываем инженерные сети (водопровод, электричество, отопление) и устанавливаем необходимое оборудование для их работы (котел, насос, распределительный щит). Дом с современным уровнем комфорта. Надежная шумоизоляция между этажами дома.

5 этап
7 месяцев
Ремонтные работы

Приступаем к чистовой отделке комнат. Онлайн отчетность — полный контроль всех этапов. Мы интегрируем технический надзор и комплектацию в единую систему. Осуществляем фото и видеофиксацию каждую неделю для вашего спокойствия.

6 этап
2 месяца
Мебель, декор, ландшафт и новоселье

Занимаемся обустройством ландшафта, осуществляем посадку растений согласно ландшафтному проекту. Устанавливаем мебель, декор, бытовую технику, светильники. Сдаем готовый объект. Готовим дом к вашему заселению. Помогаем с переездом в новый дом.

Контроль качества и гарантии

  • Мы работаем с сертифицированными поставщиками домокомплектов и уверены в качестве их продукции;
  • Мы соблюдаем все необходимые технологические сроки;
  • Гарантии на строительные работы закрепляем в договоре;
  • Сертификаты на материалы.
Сертификаты на материалы
100 лет гарантия
на силовой каркас
30 лет гарантии
на черепицу
40 лет гарантия
на остекление
5 лет гарантия
на строительные работы
Проект Название 2
8 360 000 ₽
206 м² 2 этажа
Рассрочка
Ипотека
Скоро
Комплектация
«Теплый контур»
  • Готовый проект
  • Устройство фундамента
  • Монтаж силовой каркасной конструкции
  • Монтаж кровли
  • Межэтажное монолитное перекрытие
  • Обработка и покраска каркаса
  • Безрамное остекление
  • Поворотно-откидные конструкции (окна, двери)
  • Устройство внешних окон
  • Стеклянное ограждение балкона
Хотите большего?

Фахверк Kaplun House —
это не просто
 строительство коробки
Мы предлагаем создание 
фахверк-дома под ключ
 в рамках единой концепции 
архитектуры и дизайна интерьера
Анна Каплун
Анна Каплун Основатель, дизайн-директор

Интерьер от лидера дизайн-рынка Тюмени

Анна — дизайнер интерьеров, сооснователь дизайн-бюро Kaplun&Osipov. Её работы — это авторские решения для жилых и общественных пространств. Анна регулярно участвует в стажировках и профессиональных семинарах и в курсе всех последних тенденций дизайна интерьера, а также даёт экспертные комментарии в профильных медиа. Её завершенные проекты — в сегменте “комфорт” и “комфорт +”. При создании интерьера Анна максимально учитывает образ жизни владельцев дома, их характер и привычки. Мы готовы создать интерьер фахверка, который будет наиболее точно соответствовать вашим представлениям об уютном и эргономичном доме.

Акценты и детали
В гостиной главным акцентом послужил изумрудно-зеленый диван, вокруг которого словно собирается весь интерьер. Чтобы создать ощущение камерности и уюта, мы замаскировали двери в другие помещения. Дверь в санузел скрыли при помощи деревянных ламелей, а проход на кухню закрыли раздвижной стеклянной панелью – это добавило комнате воздушности
Акценты и детали 2
В гостиной главным акцентом послужил изумрудно-зеленый диван, вокруг которого словно собирается весь интерьер. Чтобы создать ощущение камерности и уюта, мы замаскировали двери в другие помещения. Дверь в санузел скрыли при помощи деревянных ламелей, а проход на кухню закрыли раздвижной стеклянной панелью – это добавило комнате воздушности
Проект Название 2
8 360 000 ₽
206 м² 2 этажа
Рассрочка
Ипотека
Скоро
Комплектация
«Готовый коттедж»
  • Инженерные сети (электрика, отопление, водоснабжение, канализация, вентиляция)
  • Дизайн проект интерьера
  • Дизайн-сопровождение реализации
  • Финишная отделка фасада
  • Чистовая отделка помещений
  • Оснащение всего объекта (мебель, шторы, декор)
  • Ландшафтный дизайн
  • Организация переезда
  • Система «Умный дом»
Комплектация «Теплый контур» входит в стоимость

Другие проекты

Проект с названием
206 м²
2 этажа
Название 1
12 360 000 ₽
206 м²
4 спальни
2 этажа
Закрыть